Szczegóły Nieruchomości - Żołny 26D

Lokalizacja

Żołny 26D, Warszawa, Ursynów. Tylko 1 minuta od Lasu Kabackiego. Blisko obwodnicy, sklepów i szkół.

Układ Pomieszczeń

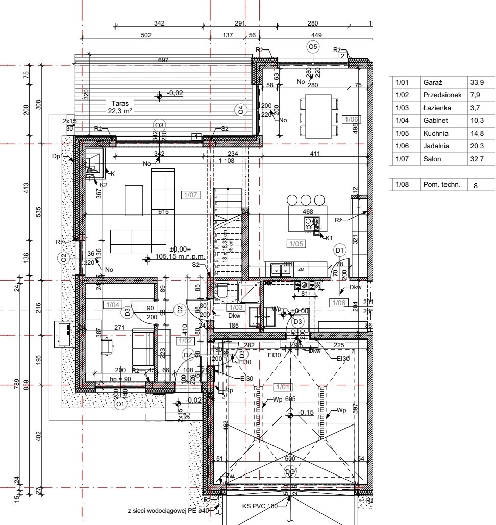
Parter

  • Salon (32,7 m²) z wyjściem na taras (22,3 m²)
  • Kuchnia (14,8 m²) + Jadalnia (20,3 m²)
  • Dodatkowy pokój (10,3 m²)
  • Garaż (33,9 m²)

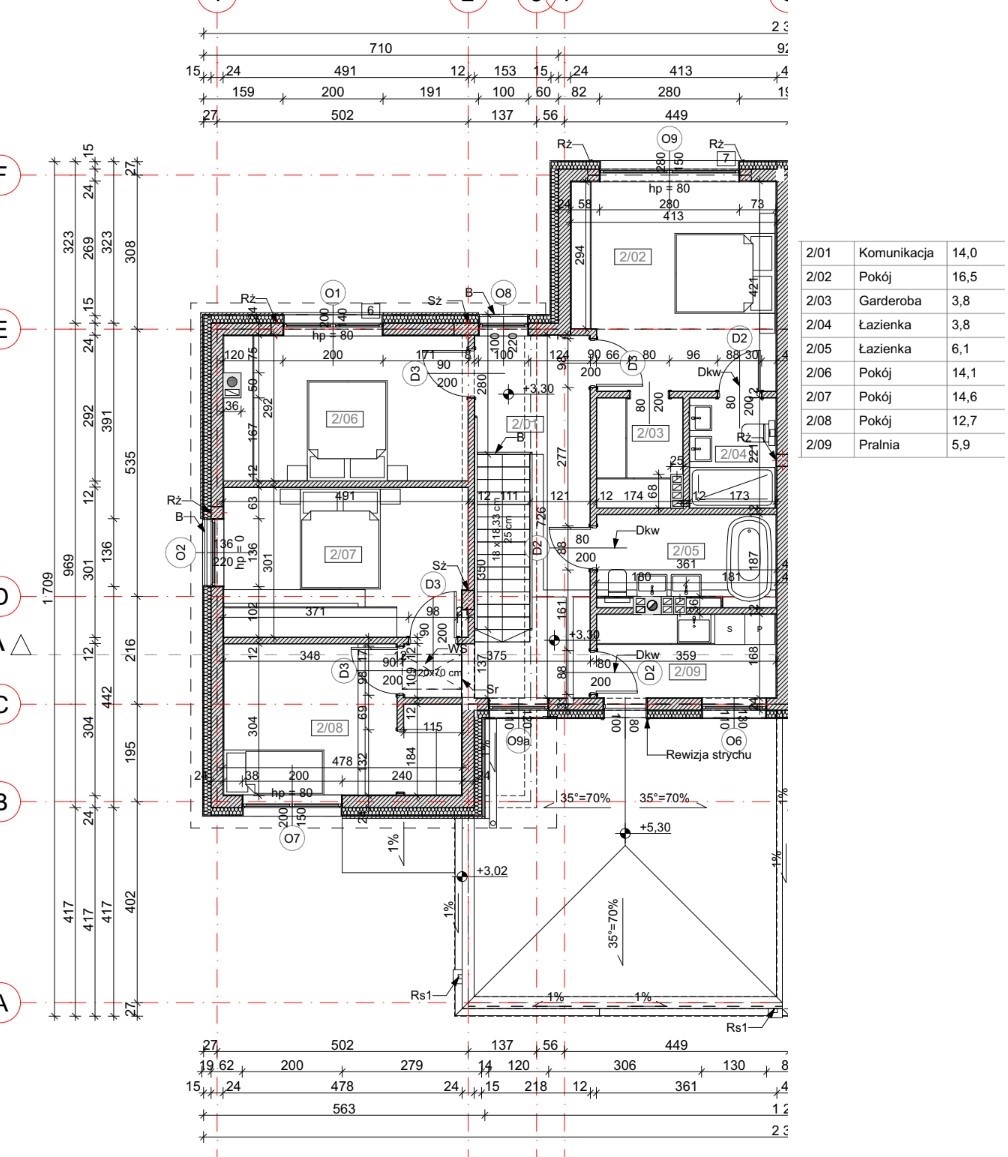
Piętro

  • 4 pokoje (do 16,5 m² każdy)
  • 2 łazienki (3,8 m² i 6,1 m²)
  • Garderoba
  • Pralnia

Atuty

Możliwość dostosowania wnętrz do potrzeb (dom/miejsce pracy).

Cicha okolica, a jednocześnie świetny dojazd.

Dużo naturalnego światła i zieleni.

Wysoki standard wykończenia i nowoczesne rozwiązania.

Specyfikacja Pomieszczeń i Powierzchnia

Parter

Salonok. 33m²
Kuchnia z Jadalniąok. 15m² + 20m²
Gabinet/Pokój Gościnnyok. 10m²
Garażok. 34m²
Hol (Parter)ok. 8m²
WCok. 4m²

Piętro

Główna Sypialniaok. 25m² (z łazienką i garderobą)
Sypialnia 2ok. 14m²
Sypialnia 3ok. 15m²
Łazienka (Piętro)ok. 6m²
Pralniaok. 6m²
Hol (Piętro)ok. 17m²

Całkowita Powierzchnia Użytkowa: 224m²

Plan parteruPlan piętra